Why Choose FURNIGENCE
Accuracy & Precision
No guesswork. Every dimension, joint, and detail is exact.
Better Visualization
Visualize your cabinetry in 3D with CABINET VISION before it goes to build.
Faster Approvals
Clear drawings make client & architect sign-offs quicker.
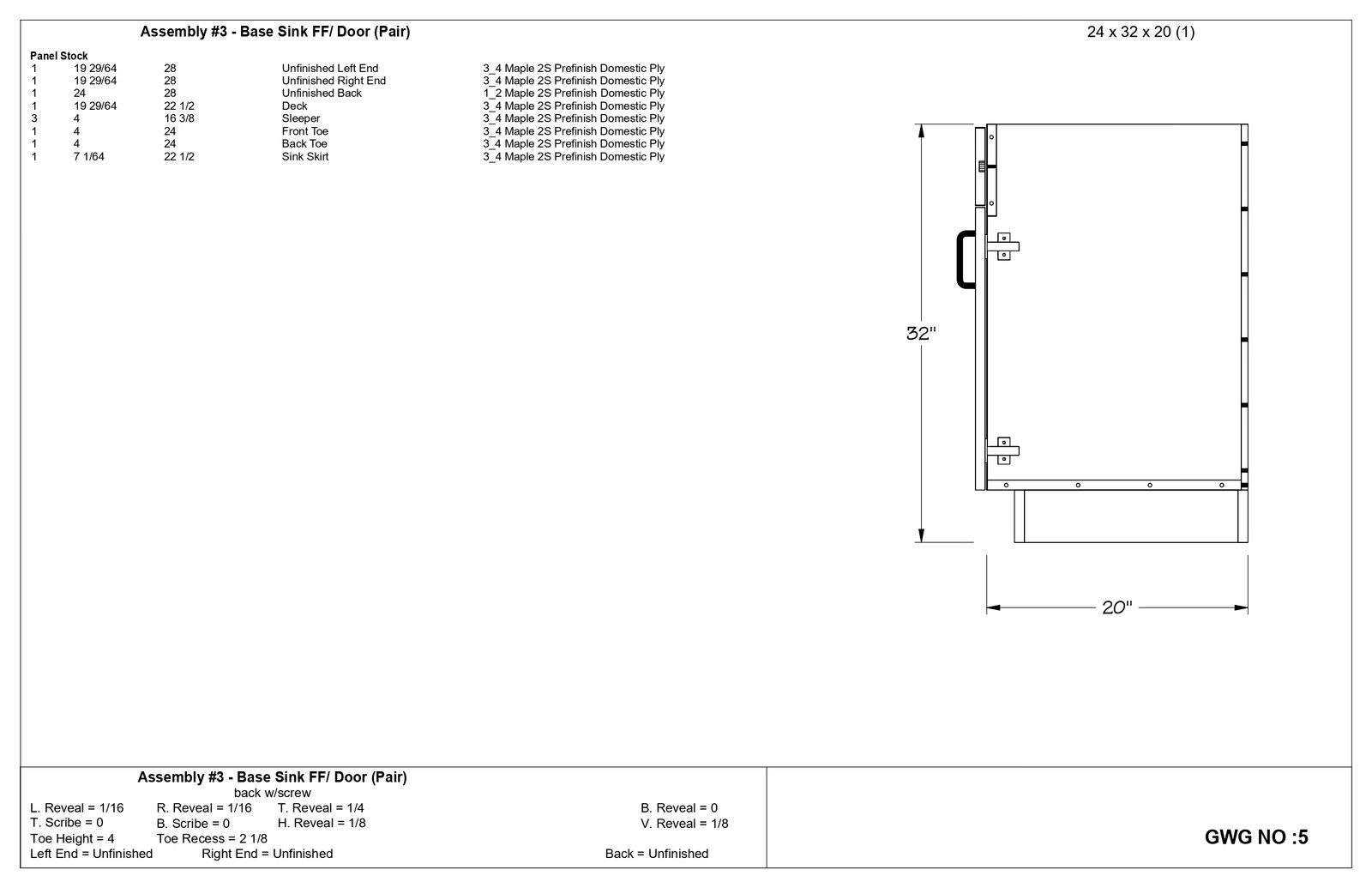
Precision Shop Drawings
Every detail captured for seamless execution.
Full Customization
Translating your specifications into clear, usable designs.
Our CABINET VISION Services


Design
Accurate cabinet designs produced in CABINET VISION to ensure proper fit, function, and coordination with architectural plans.

Render
High-quality 3D renders from CABINET VISION that showcase layouts, finishes and materials for client approvals and presentations.


Quote
Accurate, itemized cost estimates derived from CABINET VISION design data to streamline budgeting and pricing workflows.


Report
Comprehensive CABINET VISION reports detailing materials, hardware, and production requirements for effective project management.




Manufacturing Data
Optimized manufacturing output from CABINET VISION that connects design data to shop-floor production and machining systems.

Cutlist
Detailed cutlists generated in CABINET VISION to maximize material optimization and support precise, efficient fabrication.
CNC Programs
Machine-ready CNC programs from CABINET VISION for accurate cutting, drilling and machining on the shop floor.
Our Process
Consultation & Intake
Share ideas, sketches, or plans.
Drafting
We create detailed CABINET VISION shop drawings & 3D models.
Review & Refinement
You review, suggest changes, we revise.
Quality Checks
All dimensions, joints, and cut lists verified.
Delivery
Final shop drawings, ready for fabrication & installation.