Precision Millwork Drafting Services for Flawless Execution
At FURNiGENCE, we transform your design concepts into accurate millwork shop drawings and CAD drafting—ensuring seamless fabrication and installation.
What We Offer




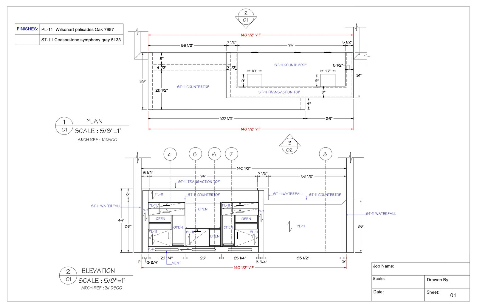
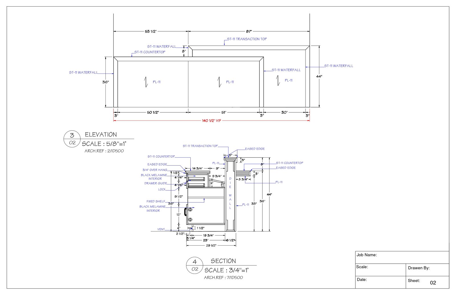
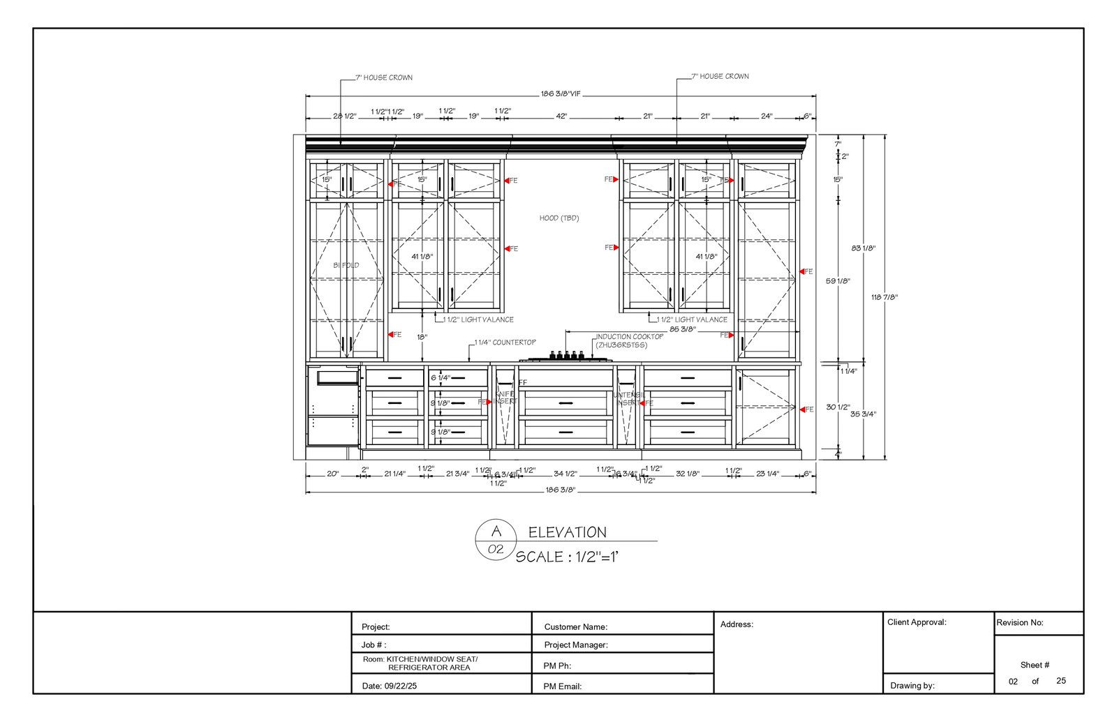
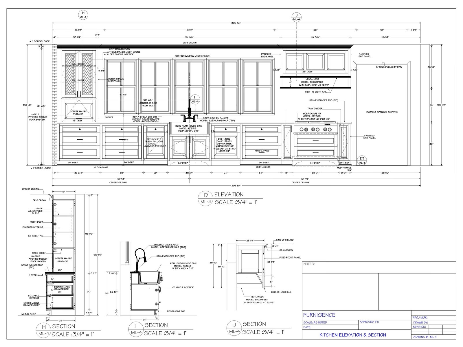
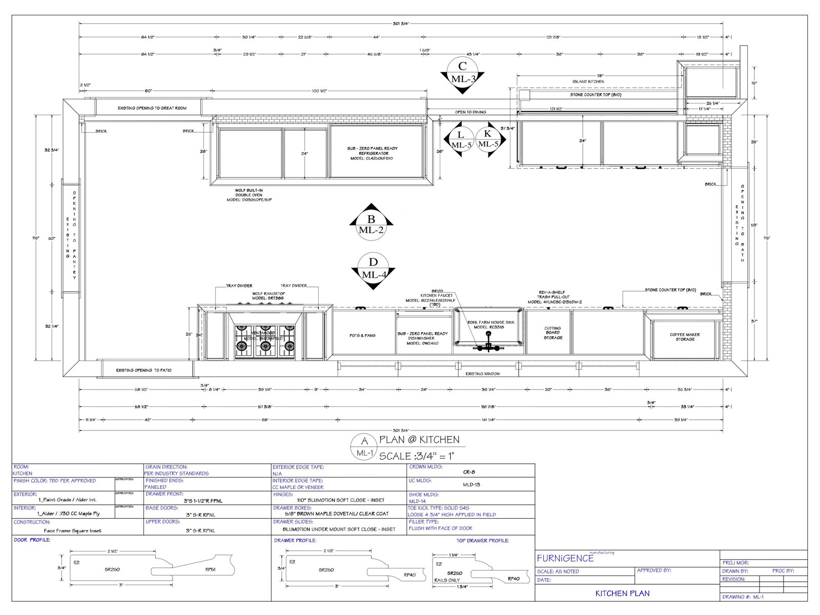
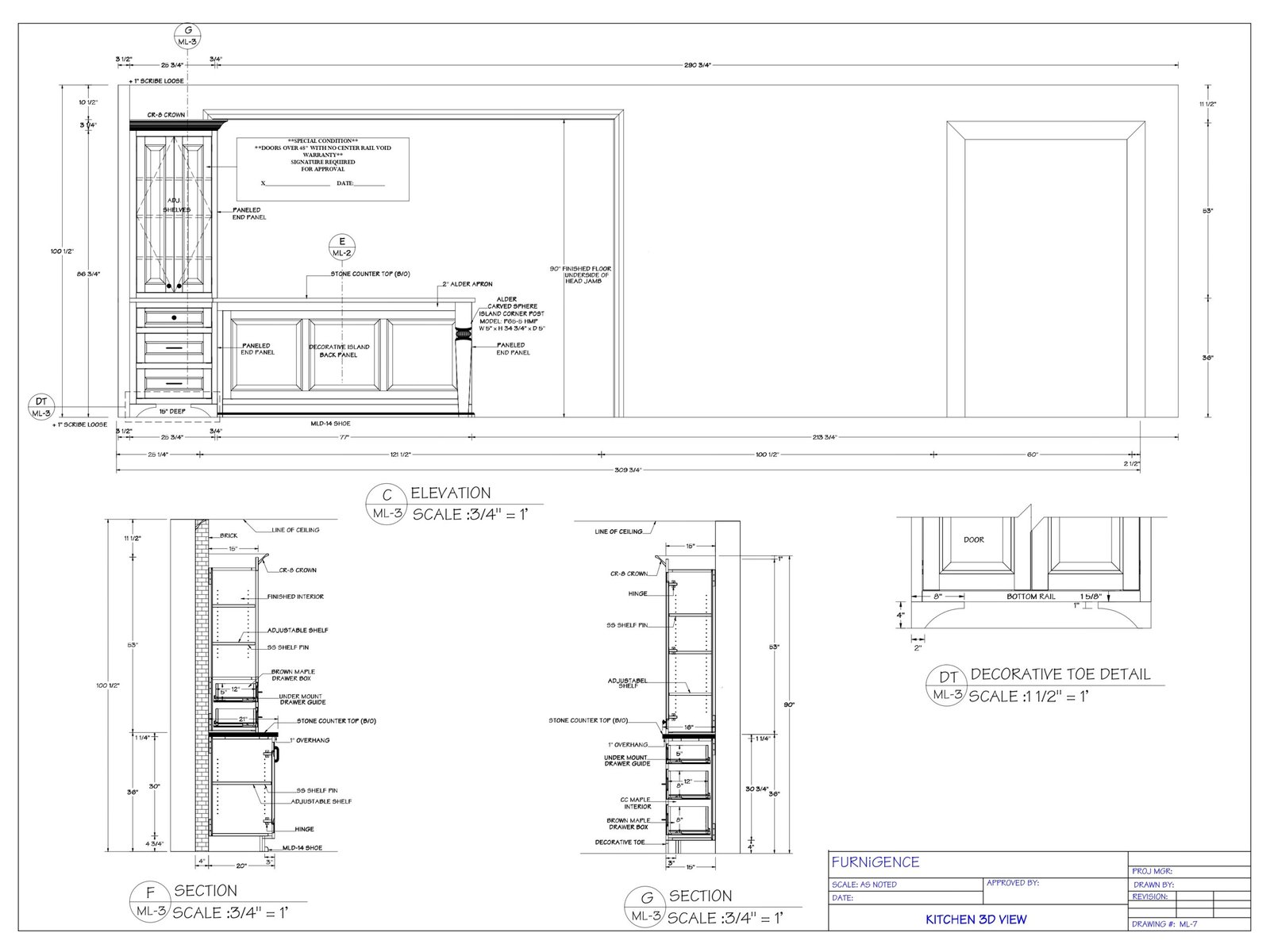
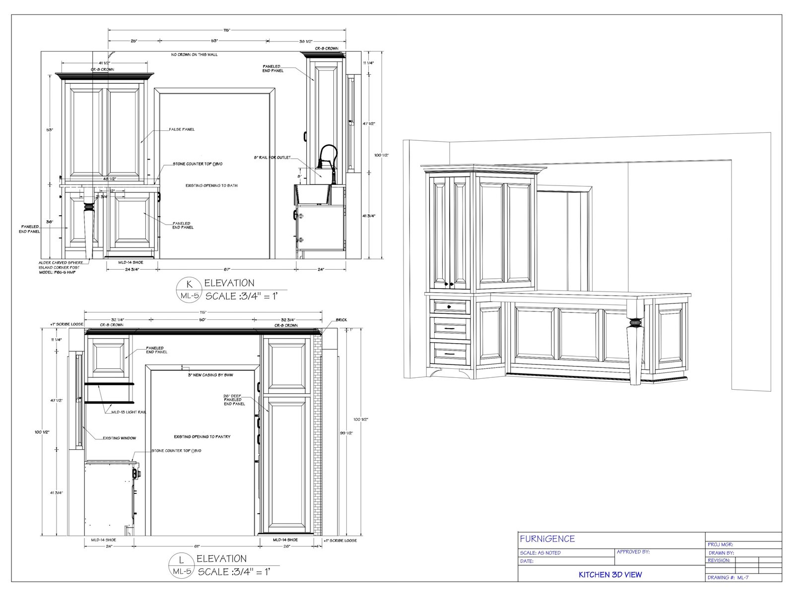
Millwork Shop Drawings
Technical blueprints for custom millwork, cabinetry, doors, mouldings, and more. These ensure accurate fabrication and smooth integration with architectural and interior designs.


Sketch-to-CAD Drafting
Have a hand-drawn sketch or idea? We convert it into precise CAD models, ensuring your concept is production-ready.







CABINET VISION Shop Drawings
Get precise, detail-rich Cabinet Vision shop drawings that bring your designs to life and streamline the manufacturing process.
AutoCAD Shop Drawings
2D & 3D AutoCAD drawings for architectural and millwork applications.


Shop Drawings Submittals
We prepare and manage all documentation required for approvals—clear, compliant, and client-ready.

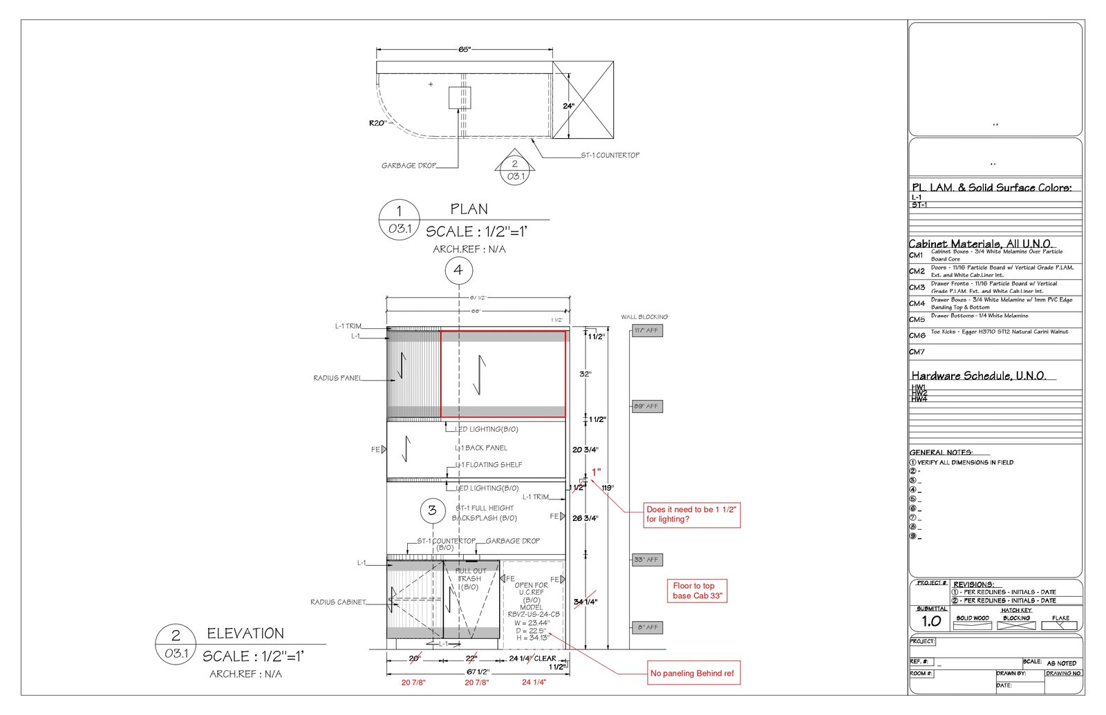
Redline / Markup Drawings
Our markup drawings highlight adjustments and refinements—helping align expectations and minimize errors.



Outsourced CAD Services
Flexible drafting support for millwork/cabinetry including 3D modelling, scaled to your project’s needs.


Architectural Shop Drawings
Comprehensive drawings that meet local architecture and construction standards, supporting millwork integration in residential and commercial interiors.
Our Process
Project Intake
Share your drawings, sketches, or requirements. We review scope, joinery, and hardware.
Planning & Scope
We prepare a drawing list, timeline, and deliverables tailored to your project.
Drafting & Review
Drafting begins, with reviews and discussions at each stage.
Quality Control
Every drawing passes strict checks for accuracy and standards.
Delivery
Final drawings are delivered in your preferred format—on time, every time.
Why Choose FURNIGENCE
Precision-first drafting, engineered for on-time, buildable execution.
Top Quality
Precision drawings that support flawless execution.
On-Time Delivery
Fast turnaround without compromising standards.
Scalable Service
From small projects to large developments.
Expert Team
Experts with decades of experience in designed manufacturing services.
Client-Centered
Your vision drives our entire process.
Ready to Bring Your Vision to Life?
Let FURNIGENCE be your partner in creating precise, reliable, and buildable millwork shop drawings.