DRAFTING
At FURNiGENCE LLP, we specialize in delivering precise, production-ready millwork drafting services tailored exclusively for cabinetmakers, woodworkers, and millwork professionals. Our detailed drafting ensures that your design intent is fully captured and accurately translated into clear, technical drawings that support seamless fabrication, client approvals, and efficient installation.
Unlike generic drafting services, we bring a deep understanding of woodworking construction methods, hardware integration, and manufacturing processes into every drawing we create. Whether you are producing custom cabinets, commercial interiors, architectural millwork, or furniture, we ensure your drafts are aligned with real-world shop requirements.
What is Millwork Drafting and Why Does It Matter?
Millwork drafting refers to the creation of detailed, scaled technical drawings used in the design, production, and installation of architectural millwork and cabinetry. These drawings serve as the backbone of your entire project, enabling communication among designers, engineers, clients, and fabricators.
Without accurate millwork drafts, the risk of miscommunication, costly rework, or project delays increases dramatically. That’s why at FURNiGENCE LLP, we treat each draft as a critical step in your project’s success.
"A perfect build begins with a perfect drawing"
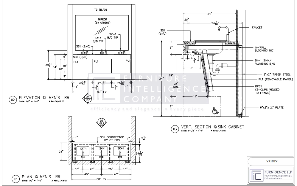
What We Offer in Our Drafting Services?
-
2D and 3D views for better visualization
-
Plan, elevation, and section views of every cabinet or millwork component
-
Material specifications, hardware placements, and joinery methods
-
Detailed annotations for construction and assembly
-
Shop-ready dimensions to support CNC and manual production
-
Client-ready presentation drawings for review and approval
Customized to Your Standards
- Construction methods
- Panel materials
- Hardware systems
- CNC compatibility and tooling
- Shop-ready dimensions to support CNC and manual production
- Brand-specific cabinet catalogs
We also integrate your preferences into our templates, so your shop drawings remain consistent across all projects.
Who Do We Work With?
Our millwork drafting services are ideal for
Cabinetmakers and joinery workshops
Interior fit-out contractors
Millwork subcontractors
Architects and interior designers
Design-build firms
Custom furniture makers
Why Choose FURNiGENCE LLP?
We are not just drafting experts — we are woodworkers too. At FURNiGENCE LLP, we combine technical drafting skills with real-world shop experience, ensuring every line drawn on paper results in a product that fits perfectly in the field.
With a focus on accuracy, speed, and flexibility, our remote drafting services help you:
- ✅ Save time on in-house drawing
- ✅ Reduce production errors
- ✅ Win more client approvals
- ✅ Improve workflow between design and fabrication
Ready to Elevate Your Drafting Game?
Whether you need drafting support for one-time projects or long-term outsourcing, FURNiGENCE LLP is your trusted partner in professional millwork drafting services. Let’s turn your design vision into precise, production-ready shop drawings that bring results.
Get in touch today to discuss your drafting needs.